Versoix-Centre-ville, Chemin César-Courvoisier 6
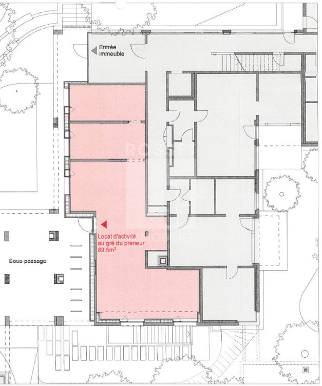
Bureaux d'env. 89 m² au rez-de-chaussée
Nous vous proposons à la location ces bureaux situés dans un immeuble au cœur de Versoix !
Idéalement situé, cet objet d'environ 89 m² au rez-de-chaussée, vous offre tout l'espace nécessaire pour développer votre activité dans un cadre professionnel agréable et fonctionnel.
Cet emplacement central est facilement accessible et bien desservi, ce qui facilite la vie de vos collaborateurs, clients et partenaires.
CARACTERISTIQUES DES LOCAUX
Cette arcade est en l'état brut le bailleur est disposé à prendre une partie des travaux à sa charge.
Elle disposent d'un linéaire de vitrine et d'une belle luminosité.
- RESTAURATION EXCLUE
ENVIRONNEMENT
- Bus, gare
- Piste cyclable
- 5 min de l'aéroport et des axes autoroutiers
- Coop, Migros, restaurant etc
- Centre-ville
We offer these offices for rent in a building in the heart of Versoix!
Ideally located, this 89 m² first floor property offers you all the space you need to develop your business in a pleasant and functional professional environment.
This central location is easily accessible and well served, making life easier for your employees, customers and partners.
CHARACTERISTICS OF THE PREMISES
This arcade is in rough condition, and the lessor is willing to take on some of the work.
It has a linear window display and is well-lit.
- RESTORATION EXCLUDED
ENVIRONMENT
- Bus, train station
- Bicycle path
- 5 min from airport and motorways
- Coop, Migros, restaurant etc.
- City center
600410.600411.501.11
Prix :CHF 2’090.- mois
CHF 281.-/m2/an
Détails
- DisponibilitéDe suite
- Loyer CHF 2’090
- Charges CHF 200
- Régimelibre
- Garantie6 mois
Visites
- Gestionnaire
- Khaled GHOULEM
- 022 339 39 79
Contact Régie
- Khaled GHOULEM
- 022 339 39 79
- k.ghoulem@rosset.ch
street view