Genève- Jardin des Alpes, Rue Ami-Lévrier 15
Bureaux d'env. 159 m² au 1er étage
Offices of approx. 159 m² on 1st floor
GENEVE-Quartier jardin des Alpes / centre-ville, bénéficiant d'une excellente accessibilité, dans un immeuble de standing avec une vue sur le jet d'eau, à quelques pas de la gare, des grands Hôtels et du lac.
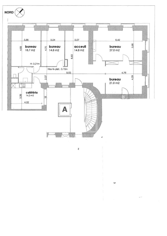
Nous vous proposons à la location une surface d'environ 159 m².
Ces bureaux sont situés au 1er étage d'un bel immeuble haussmannien et offrent donc une vue sur le lac.
Ils se distribuent comme suit :
- 4 Bureaux
- 1 Open-space ou une réception
- 1 WC
- 1 cuisine agencée, équipée
- Équipés de fibre optique
- Moulures, cheminée, parquet de caractère
Code offre :
2740.2741.14.11
Favori Inscription 2740.2741.14.11
Prix :CHF 6’670.- mois
CHF 504.-/m2/an
Détails
- DisponibilitéDe suite
- Loyer CHF 6’670
- Charges CHF 230
- Régimelibre
- Garantie6 mois
Visites
- Gestionnaire
- Khaled GHOULEM
- 022 339 39 79
Contact Régie
- Khaled GHOULEM
- 022 339 39 79
- k.ghoulem@rosset.ch
street view







